メゾン・ド・サチ
賃料
19
万円
種別
マンション
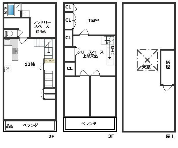
間取
3LDK
面積
109.71㎡
住所
兵庫県神戸市兵庫区水木通6丁目2-4
交通
大開駅
徒歩3分
間取り
外観
浴室
洗面所
キッチン
収納
収納
収納
トイレ
エントランス
収納
収納
洋室
洋室
洋室
洋室
設備
収納
洋室
収納
設備